Appartamenti in vendita a MonteCarlo

DONATELLO - Nel quartiere di Fontvieille, bellissimo appartamento di 2 locali, ristrutturato.

Tornare alla lista

2 333 100 €
No. camere : 2 stanze
Tipo di proprietà : Appartamento
Città : Monaco
Paese : Monaco
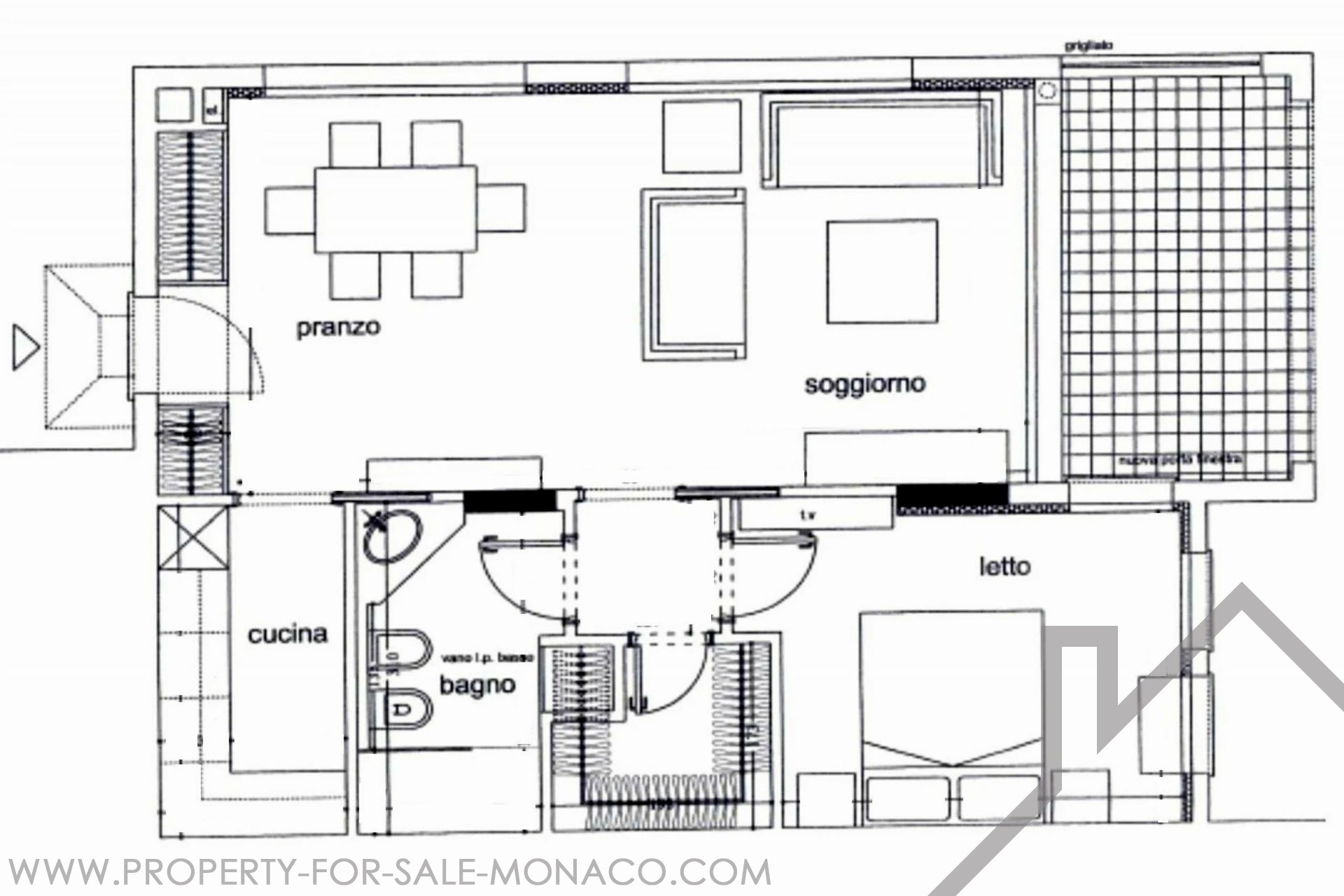
Superficie abitabile : 51 m²
Superficie totale : 59 m²
Superficie terrazzi : 8 m²

Nel quartiere di Fontvieille, bellissimo appartamento di 2 locali, ristrutturato, Circa 59 mq di superficie abitabile di cui 51 mq di superficie abitabile e 8 mq di loggia. L'appartamento, molto silenzioso, al piano terra, è in ottime condizioni con pavimento in parquet, doppi vetri oscuranti e aria condizionata reversibile. Ingresso, soggiorno, cucina arredata, bagno, ripostiglio, loggia, una grande cantina. Gode di ingresso indipendente e offre anche la possibilità di uso misto. Affittato fino al 15 novembre 2025 canone mensile € 4.400 + € 500

Posizione del prodotto

Agence

AFIM SAM
3, avenue de Grande Bretagne

www.afim.mc

+377 97 97 87 87

Contatto

* campo obbligatorio

Tornare alla lista

FR EN IT

Quartieri di Monaco

Anse du Portier / Carré d'Or / Condamine / Fontvieille / Jardin Exotique / La Rousse - Saint Roman / Larvotto / Monaco-Ville / Moneghetti / Monte-Carlo / Port