Appartamenti in vendita a MonteCarlo

CHATEAU PERIGORD II - La Rousse - Trilocale Vista Mare

Tornare alla lista

6 450 000 €
No. camere : 3 stanze
Tipo di proprietà : Appartamento
Città : Monaco
Paese : Monaco
Superficie abitabile : 98 m²
Superficie totale : 118 m²
Superficie terrazzi : 20 m²
Data di liberazione : 15/04/2026

Quartiere La Rousse, in una residenza di lusso con portineria H24.

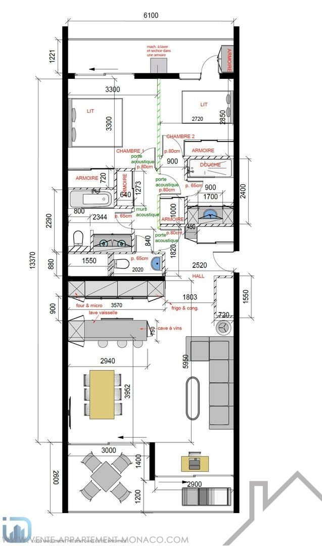
Situato al 12° piano, questo bilocale di 98 mq di superficie abitabile e 20 mq di terrazze gode di una vista sul mare e di una doppia esposizione.

È composto da un ingresso, un soggiorno con accesso a una terrazza vista mare e una cucina attrezzata, due camere da letto con spogliatoi, un bagno completo, un bagno con doccia e un bagno per gli ospiti.


Posizione del prodotto

Agence

Heritage Properties
31, avenue Princesse Grace

www.heritageproperties.mc

+377 97 70 97 20

Contatto

* campo obbligatorio

Tornare alla lista

FR EN IT

Quartieri di Monaco

Anse du Portier / Carré d'Or / Condamine / Fontvieille / Jardin Exotique / La Rousse - Saint Roman / Larvotto / Monaco-Ville / Moneghetti / Monte-Carlo / Port