GRANADA - Giardino Esotico, monolocale arredato, tranquillo

1 650 000 €
AFIM SAM

AFIM SAM

3, avenue de Grande Bretagne

Rif. : 517V15699A
Prezzo : 1 650 000 €
Bagni : 1
Tipo di proprietà : Appartamento
Edicifio : Granada
Quartiere : Jardin Exotique (Monaco)
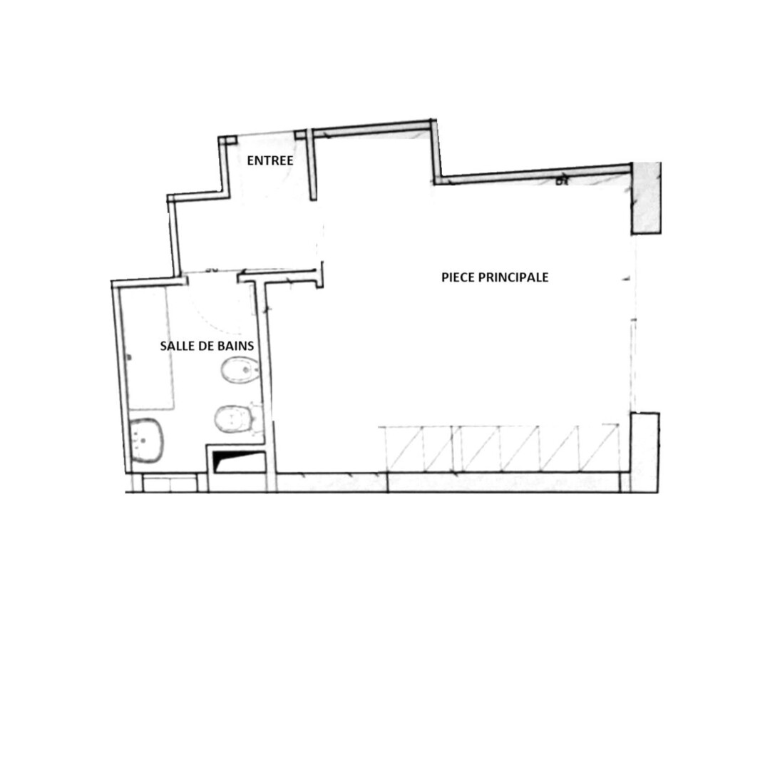
Superficie abitabile : 28.5 m²
Superficie totale : 30 m²
Superficie terrazzi : 1.5 m²

Maggiori dettagli

Sul boulevard de Belgique, monolocale arredato, tranquillo, di circa 30 m² con il piccolo balcone, 1.50 m², completamente ristrutturato. Sala principale con ampia vetrata, letto a scomparsa, divano, cucina americana nuova completamente attrezzata con lavastoviglie, lavatrice, forno, microonde, frigorifero) e bagno. Libero
AFIM SAM

AFIM SAM

3, avenue de Grande Bretagne

Contatto

BCDHIX
Copiare il codice antispam nel campo a destra
* campo obbligatorio

Posizione del prodotto

Quartieri di Monaco

Mareterra Carré d'Or Condamine Fontvieille Jardin Exotique La Rousse - Saint Roman Larvotto Monaco-Ville Moneghetti Monte-Carlo Port