3 CAMERE - "TROCADERO"

7 700 000 € Esclusiva
CAPI

CAPI

31, avenue Princesse Grace

Bellissimo appartamento di 3 locali con vista mare

Rif. : 4C2
Prezzo : 7 700 000 €
Camere : 2
Bagni : 2
Tipo di proprietà : Appartamento
Edicifio : Trocadero
Quartiere : Monte-Carlo (Monaco)
Superficie abitabile : 130 m²
Superficie totale : 163 m²
Superficie terrazzi : 33 m²
Livello : 4
Esclusiva

Maggiori dettagli

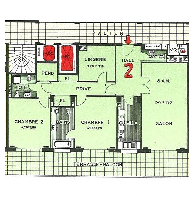
L'appartamento è composto da un bellissimo ingresso con un bagno per gli ospiti, un soggiorno e la sua cucina separata. 

Una lingerie si trova nella parte notte con armadi e un bagno con doccia senza finestra. 

Le 2 camere da letto e il 2 ° bagno con doccia sono vista sul mare così come la terrazza.

L'appartamento dispone di una cantina.

Nessuna retrocessione.

CAPI

CAPI

31, avenue Princesse Grace

Contatto

ACMOVY
Copiare il codice antispam nel campo a destra
* campo obbligatorio

Posizione del prodotto

Quartieri di Monaco

Mareterra Carré d'Or Condamine Fontvieille Jardin Exotique La Rousse - Saint Roman Larvotto Monaco-Ville Moneghetti Monte-Carlo Port