Appartamenti in vendita a MonteCarlo

Grazioso appartamento di 2 locali con loggia e doppio parcheggio

Tornare alla lista

Idealmente situato nella parte alta della Condamine, "Le Castel" è una residenza popolare con servizio di portineria, nelle immediate vicinanze di Place d'Armes, dei suoi negozi e servizi. Questa posizione privilegiata combina la vita cittadina con l'atmosfera residenziale, in un ambiente pratico ed elegante.

3 400 000 €
No. camere : 2 stanze
Tipo di proprietà : Appartamento
Città : Monaco
Paese : Monaco
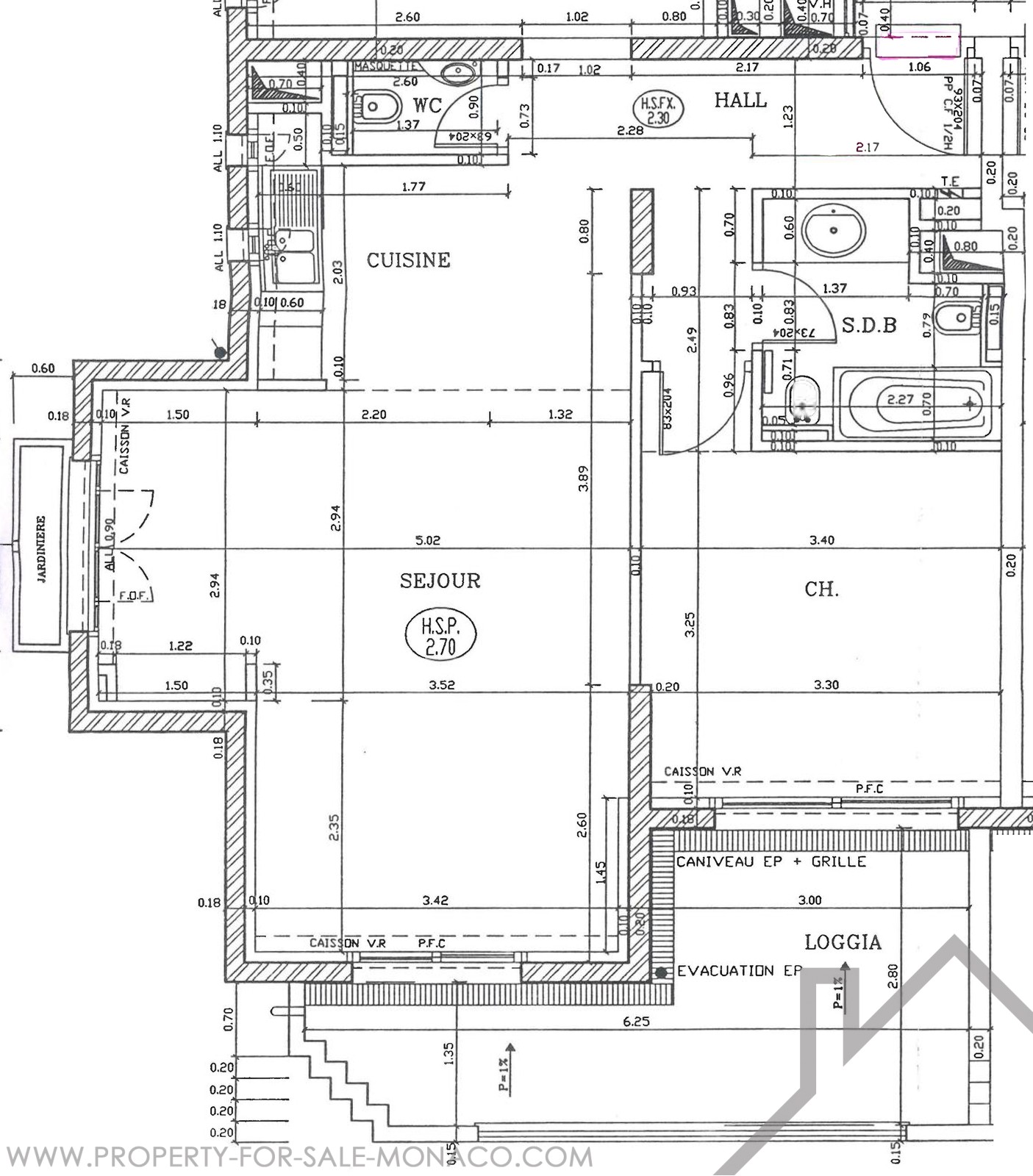
Superficie abitabile : 65 m²
Superficie totale : 79 m²
Superficie terrazzi : 14 m²
Livello : 1er étage
Arredato : 1
Parcheggi : 1

Descrizione dell'appartamento

Questo bellissimo bilocale si apre su un ingresso che conduce ad un soggiorno ampliato da una piacevole loggia. La cucina a pianta aperta completamente attrezzata si fonde armoniosamente con lo spazio abitativo. La camera da letto principale ha il suo bagno completo e un bagno per gli ospiti completa il layout. Il tutto beneficia di aria condizionata e di una bella luce. Completano questa proprietà una cantina e un ampio parcheggio, che può ospitare un veicolo grande e uno piccolo.

Un appartamento ideale per godere del fascino de La Condamine, in un residence con portineria vicino a tutti i servizi. Una visita è d'obbligo per scoprire tutti i comfort offerti da questa proprietà.


Posizione del prodotto

Agence

Agence Continentale
19, boulevard des Moulins

www.continentale.mc

+377 93 50 54 64

Contatto

* campo obbligatorio

Tornare alla lista

FR EN IT

Quartieri di Monaco

Anse du Portier / Carré d'Or / Condamine / Fontvieille / Jardin Exotique / La Rousse - Saint Roman / Larvotto / Monaco-Ville / Moneghetti / Monte-Carlo / Port