MONTAIGNE B/C - Carré d'Or - Monolocale rinnovato uso misto
Carré d'Or, in una residenza di lusso con portineria sviluppata su 12 piani e avvolta da ampie logge.
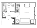
Questo monolocale, completamente rinnovato, gradevole e tranquillo, si trova al 5° piano e dispone di una superficie abitabile di 26 mq. Gode di una vista libera su un giardino interno.
Si compone di: un ingresso con armadio, una stanza principale, una cucina non attrezzata, un bagno con doccia.
Pavimento in marmo, aria condizionata.
Si vende con 1 cantina.