CONDAMINE / RUE PRINCESSE CAROLINE / 3 CAMERE USO MISTO

4 750 000 €
Coldwell Banker Etic Realty

Coldwell Banker Etic Realty

15, boulevard Princesse Charlotte

Rif. : VMC-2024-58
Prezzo : 4 750 000 €
Camere : 2
Bagni : 2
Tipo di proprietà : Appartamento
Quartiere : Port (Monaco)
Superficie totale : 95 m²
Data di liberazione : À convenir
Arredato : Si

Maggiori dettagli

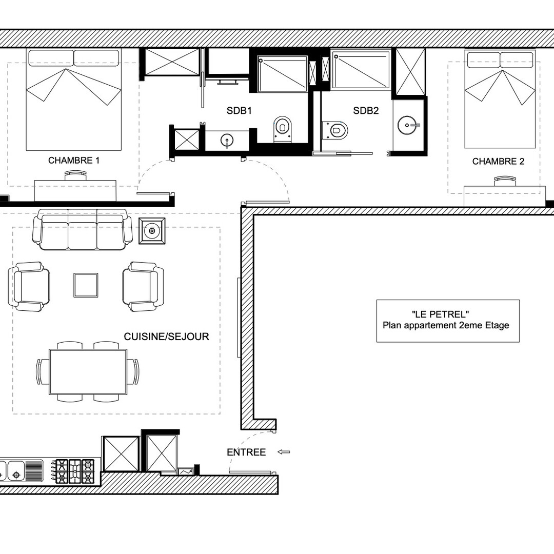
QUARTIERE CONDAMINE - Un bellissimo appartamento di 3 locali ad uso misto (casa o ufficio), situato al 2° piano (altezza di un 3° livello) dell'edificio "Le Petrel", moderna residenza con ascensore, idealmente posizionato sull'unica strada pedonale del Principato.

Luminoso, ordinato, delicato: a pochi passi da Port Hercules, questo appartamento è stato completamente ristrutturato utilizzando materiali di alta gamma e un'attenzione particolare alle finiture.

Si compone di un ingresso, un soggiorno e cucina a vista, con terrazzo, e due camere da letto e due bagni anch'essi con terrazzo. 

Coldwell Banker Etic Realty

Coldwell Banker Etic Realty

15, boulevard Princesse Charlotte

Contatto

GIMRSZ
Copiare il codice antispam nel campo a destra
* campo obbligatorio

Posizione del prodotto

Quartieri di Monaco

Mareterra Carré d'Or Condamine Fontvieille Jardin Exotique La Rousse - Saint Roman Larvotto Monaco-Ville Moneghetti Monte-Carlo Port