MAGNIFICO ATTICO VISTA MARE - LE PALAIS DU PRINTEMPS

13 400 000 €
Petrini Exclusive Real Estate Monaco

Petrini Exclusive Real Estate Monaco

3 Avenue des Citronniers

Nel cuore dei Moneghetti, scopri questo attico duplex, una perfetta fusione tra l'eleganza di un edificio borghese e una ristrutturazione contemporanea. Sali la sua scala interna e lasciati sorprendere da un'ampia terrazza sul tetto, dotata di pergolato e cucina estiva, che rivela una vista mozzafiato sul Mar Mediterraneo.

Rif. : PEV535
Prezzo : 13 400 000 €
Camere : 3
Bagni : 3
Tipo di proprietà : Appartamento
Edicifio : Palais du Printemps
Quartiere : Moneghetti (Monaco)
Superficie abitabile : 163 m²
Superficie totale : 316 m²
Superficie terrazzi : 153 m²
Livello : 9-10

Maggiori dettagli

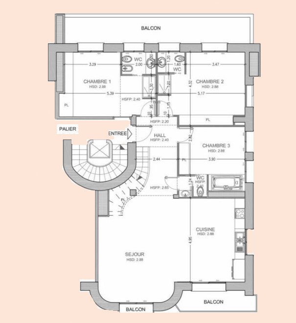
Superbo attico duplex recentemente ristrutturato situato in un edificio in stile borghese sul boulevard de Belgique. La proprietà si rivela con un ingresso che conduce ad un soggiorno / sala da pranzo che si apre su un balcone, offrendo così una vista mozzafiato sul mare. Ha una moderna cucina aperta, così come due camere da letto, ognuna con il proprio bagno con doccia e accesso al balcone. Una terza camera da letto è completata da un bagno. Il piano superiore è caratterizzato da una grande terrazza attrezzata con pergolato e una cucina estiva, tutte con vista sul mare.

A seconda delle preferenze, la cucina può essere isolata o integrata nel soggiorno.

Il parcheggio è disponibile anche per l'affitto nell'edificio Les Oliviers.

Petrini Exclusive Real Estate Monaco

Petrini Exclusive Real Estate Monaco

3 Avenue des Citronniers

Contatto

BEGIJY
Copiare il codice antispam nel campo a destra
* campo obbligatorio

Posizione del prodotto

Quartieri di Monaco

Mareterra Carré d'Or Condamine Fontvieille Jardin Exotique La Rousse - Saint Roman Larvotto Monaco-Ville Moneghetti Monte-Carlo Port