Ufficio in perfetto stato / Locale commerciale à Fontvieille

2 014 000 €
Carat Properties

Carat Properties

Tour Odéon 36 av. de l'Annonciade

Rif. : MF007 Botticelli
Prezzo : 2 014 000 €
Tipo di proprietà : Ufficio
Edicifio : Botticelli
Quartiere : Fontvieille (Monaco)
Superficie abitabile : 49 m²
Superficie totale : 49 m²
Livello : RDC
Data di liberazione : 31/10/2025

Maggiori dettagli

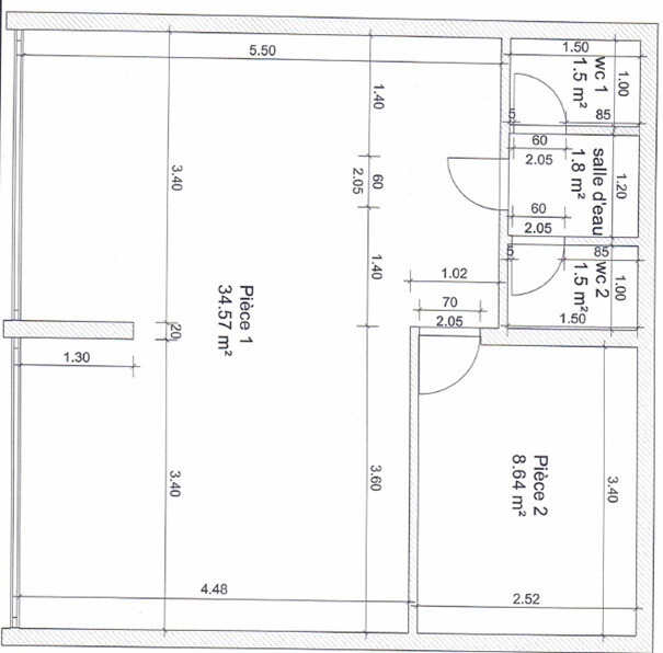
Bel ufficio con vetrina situato in un palazzo di buon standing a Fontvieille  Place des Oliviers.

Con una superficie confortevole di 49 m², lo spazio è diviso in 2 uffici

2 servizi toilette

Armadi

Affittato fino al 31/10/2025

Carat Properties

Carat Properties

Tour Odéon 36 av. de l'Annonciade

Contatto

ABFMWY
Copiare il codice antispam nel campo a destra
* campo obbligatorio

Posizione del prodotto

Quartieri di Monaco

Mareterra Carré d'Or Condamine Fontvieille Jardin Exotique La Rousse - Saint Roman Larvotto Monaco-Ville Moneghetti Monte-Carlo Port