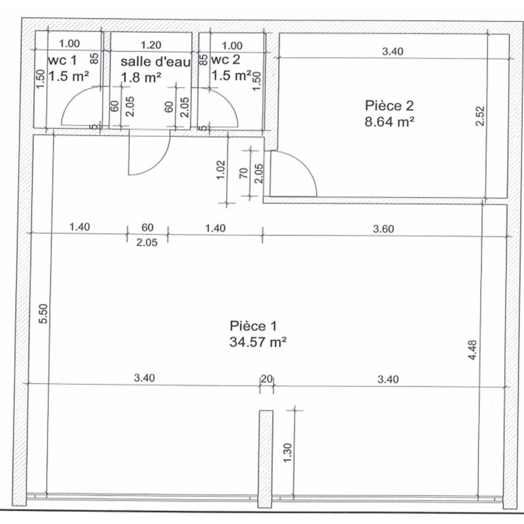
BOTTICELLI 2 014 000 € + 8 AFIM SAM 3, avenue de Grande Bretagne +377 97 97 87 87 Site web Contatto Rif. : 517P60V Prezzo : 2 014 000 € Tipo di proprietà : Ufficio Edicifio : Botticelli Quartiere : Fontvieille (Monaco) Superficie abitabile : 48 m² Superficie totale : 48 m² Maggiori dettagli Nel quartiere di Fontvieille, bel ufficio di circa 48 m² con accesso diretto, una vetrina e un'ottima altezza sotto soffitto. Ingresso, stanza principale, sala riunioni, 2 bagni. Attualmente affittato fino al 31 ottobre 2026 AFIM SAM 3, avenue de Grande Bretagne +377 97 97 87 87 Site web Contatto Cognome * Nome * Telefono E-Mail * Messaggio * Antispam * DFSUWX Copiare il codice antispam nel campo a destra Inviare * campo obbligatorio Posizione del prodotto
Maggiori dettagli Nel quartiere di Fontvieille, bel ufficio di circa 48 m² con accesso diretto, una vetrina e un'ottima altezza sotto soffitto. Ingresso, stanza principale, sala riunioni, 2 bagni. Attualmente affittato fino al 31 ottobre 2026