Locale commerciale / ufficio

2 014 000 €
Agence EIP

Agence EIP

57, rue Grimaldi

Situato nel cuore del dinamico quartiere di Fontvieille, questo ufficio gode di una posizione strategica a Monaco, perfetta per gli affari.
Ufficio in ottime condizioni con bella finestra.

Attualmente affittato a 6050 € TTC spese incluse.

Rif. : EIPBOT007
Prezzo : 2 014 000 €
Tipo di proprietà : Locale
Edicifio : Botticelli
Quartiere : Fontvieille (Monaco)
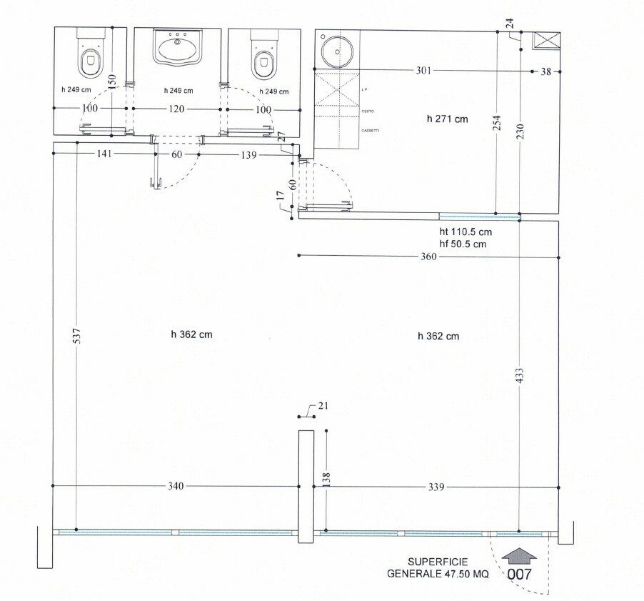
Superficie abitabile : 47 m²
Superficie totale : 47 m²
Data di liberazione : 31/10/2025
Agence EIP

Agence EIP

57, rue Grimaldi

Contatto

GHMNST
Copiare il codice antispam nel campo a destra
* campo obbligatorio

Posizione del prodotto

Quartieri di Monaco

Mareterra Carré d'Or Condamine Fontvieille Jardin Exotique La Rousse - Saint Roman Larvotto Monaco-Ville Moneghetti Monte-Carlo Port