BELLISSIMO SPAZIO COMMERCIALE / UFFICIO

2 050 000 €
Carat Properties

Carat Properties

Tour Odéon 36 av. de l'Annonciade

Vicino a negozi e negozi

Rif. : AL 99 MC bis
Prezzo : 2 050 000 €
Tipo di proprietà : Locale
Quartiere : Fontvieille (Monaco)
Superficie abitabile : 49 m²
Superficie totale : 49 m²
Livello : Rdc
Data di liberazione : 1er novembre 2025

Maggiori dettagli

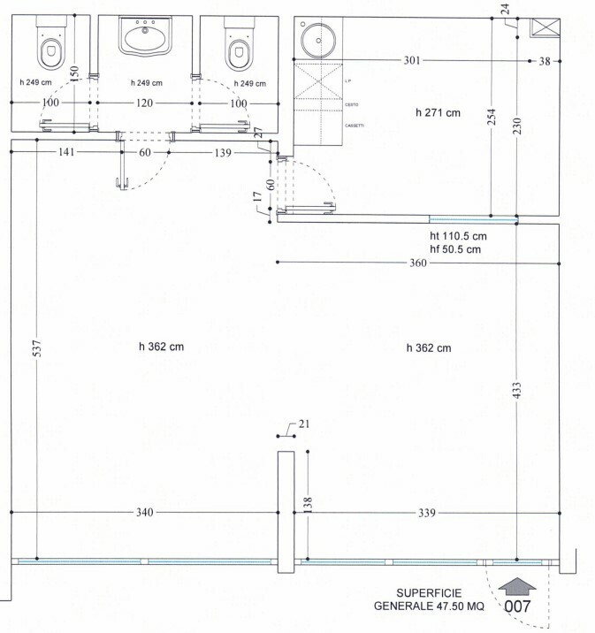
Situato nel cuore di Fontvieille, a pochi passi dal porto, magnifico ufficio/locale commerciale, con finestra, composto da una sala principale, una sala riunioni, una toilette maschile e una toilette femminile.

Attualmente affittato 6.050 €uro TTC / mese, spese incluse. Ottimo rendimento locativo.

Carat Properties

Carat Properties

Tour Odéon 36 av. de l'Annonciade

Contatto

HINPUX
Copiare il codice antispam nel campo a destra
* campo obbligatorio

Fontvieille

Il quartiere di Fontvieille e situato nella parte ovest di Monaco. Ospita fabbriche, uffici e abitazioni, un centro di soccorso.

Una gran parte di questa zona di quasi 33 ettari e stata presa sul mare, dove si è potuto costruire un porto, lo stadio Louis II, l'eliporto, un grande centro commerciale dove si trova il museo navale, il museo Monaco Top Cars Collection, il museo dei francobolli e delle monete, e uno zoo.

Si trovano anche dei palazzi con degli appartamenti dedicati ai monegaschi, accanto a palazzi di lusso come il Memmo Center, il Seaside Plaza o le Terrasses du Port.

Quartieri di Monaco

Mareterra Carré d'Or Condamine Fontvieille Jardin Exotique La Rousse - Saint Roman Larvotto Monaco-Ville Moneghetti Monte-Carlo Port