DIRITTO DI LOCAZIONE: CARRÉ D'OR

4 500 000 €
Agence Gramaglia

Agence Gramaglia

9, avenue Princesse Alice

Magnifico negozio a 2 passi dal casinò, ristrutturato con materiali di lusso e con una bella vetrina

Rif. : VTE DROIT AU BAIL MC
Prezzo : 4 500 000 €
Tipo di proprietà : Cessione di affitto o attività
Quartiere : Carré d'Or (Monaco)
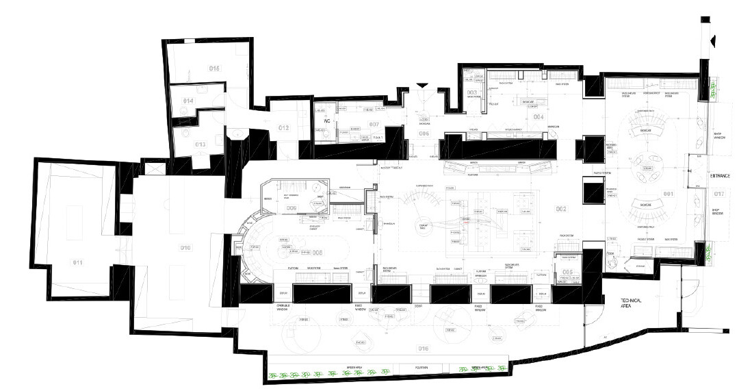
Superficie abitabile : 240 m²
Superficie totale : 300 m²
Superficie terrazzi : 60 m²
Livello : RDC
Data di liberazione : Rapidement

Maggiori dettagli

Idealmente situato nel cuore del Carré d'Or, questo negozio con una superficie totale di 300 mq completamente ristrutturato con materiali di alta qualità è composto da:

- un ingresso, un ampio salone, una sala VIP, un piccolo salone con camerino, 1 toilette, una toilette per uomini e donne, una zona cucina, un ufficio, un'officina, un ripostiglio e una terrazza privata

Completamente climatizzato e sicuro (telecamere di sorveglianza)

Attività autorizzate nel contratto di locazione in corso: acquisto e vendita di prêt-à-porter di alta gamma per uomo, donna e bambino, tra cui pellicce, scarpe, pelletteria e tutti gli accessori di moda, profumi, articoli per la casa e decorativi, 

Agence Gramaglia

Agence Gramaglia

9, avenue Princesse Alice

Contatto

CHNTVW
Copiare il codice antispam nel campo a destra
* campo obbligatorio

Posizione del prodotto

Carré d'Or

Posto mitico del Principato di Monaco, il Carré d'Or non è proprio un quartiere ma la zona che circonda il Casino di Monte-Carlo.

Si trovano le boutique dei grandi nomi dell'alta moda come Hermès, Céline, Christian Dior, Saint Laurent Rive Gauche, Louis Vuitton, Gucci, Chanel, Prada, Ichthys, o le vetrine di gioiellieri come Cartier, Chopard, Van Cleef Arpels, Bulgari, Piaget, Repossi... Ci sono anche dei palazzi molto ricercati dai compratori come il Park Palace, il Métropole, il Mirabeau, il Monte-Carlo Star o ancora il Montaigne.

Quartieri di Monaco

Mareterra Carré d'Or Condamine Fontvieille Jardin Exotique La Rousse - Saint Roman Larvotto Monaco-Ville Moneghetti Monte-Carlo Port