Appartamenti in vendita a MonteCarlo

LUSSUOSO QUADRILOCALE CON TERRAZZA ECCEZIONALE - VENDUTO ARREDATO

Tornare alla lista

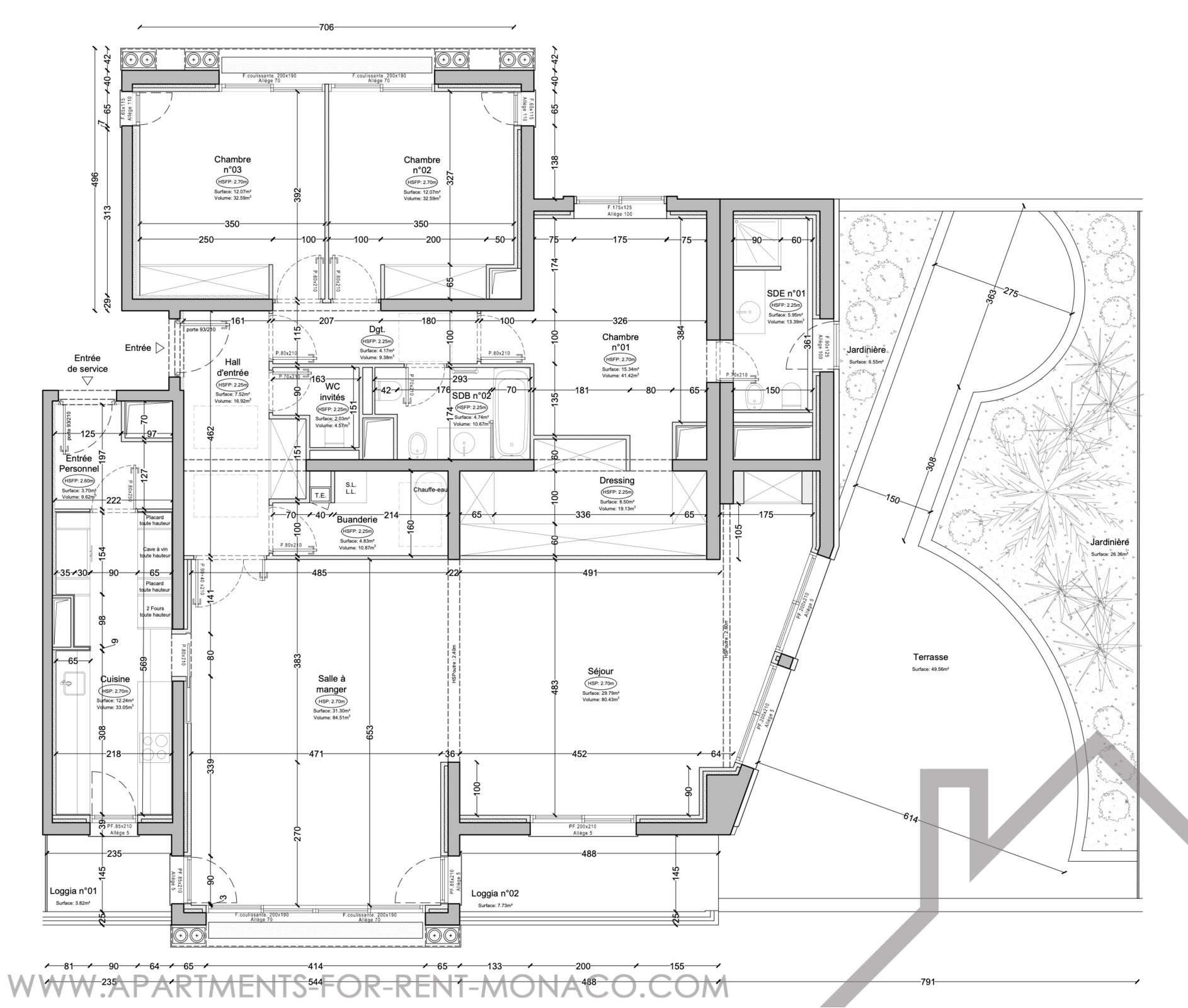
Scopri questa eccezionale proprietà a Monaco, che unisce lusso e raffinatezza grazie alle sue finiture lussuose. La particolarità del bene é una spaziosa terrazza, vera estensione del vostro spazio abitativo. La terrazza é dotata di una sala da pranzo, un salotto all'aperto e una cucina estiva sotto un elegante pergolato. L'ambiente unico ricorda una villa o un attico con il proprio giardino. Venduto arredato (esclusi dipinti d'arte). Il bene comprende due posti auto privati

15 900 000 €
No. camere : 4 stanze
Tipo di proprietà : Appartamento
Città : Monaco
Paese : Monaco
Superficie abitabile : 154.25 m²
Superficie totale : 248.27 m²
Superficie terrazzi : 94.02 m²
Livello : 6
Data di liberazione : Immédiatement
Arredato : 1
Parcheggi : 2

Situato sul Boulevard d'Italie, nelle immediate vicinanze delle spiagge del Larvotto e dei negozi del quartiere Saint-Roman, il Rocazur è un residence che offre un servizio di sicurezza 24 ore su 24.

Questo sontuoso appartamento, recentemente ristrutturato e completamente arredato, offre una superficie totale di 248,27 m² di cui 94,02 m² di terrazza con pergolato, ricreando l'atmosfera di una villa con il proprio giardino pensile.

L'appartamento è composto da:
Un ingresso,
Un ampio soggiorno doppio con zona pranzo,
Una grande cucina separata, completamente attrezzata e con ingresso di servizio,
Una camera da letto principale con bagno privato e spogliatoio,
Due camere da letto con bagno,
Uno spogliatoio con bei volumi di archiviazione,
Una lavanderia,
Servizi igienici per gli ospiti,
Una terrazza arredata,
Due posti auto e una cantina.

Le finiture ricercate, la luminosità e i volumi generosi conferiscono a questa proprietà un'atmosfera elegante e confortevole, ideale sia per una residenza primaria che secondaria.


Posizione del prodotto

Agence

Petrini Exclusive Real Estate Monaco
3 Avenue des Citronniers

www.petrini.mc

+377 92 00 16 00

Contatto

* campo obbligatorio

Tornare alla lista

FR EN IT

Quartieri di Monaco

Anse du Portier / Carré d'Or / Condamine / Fontvieille / Jardin Exotique / La Rousse - Saint Roman / Larvotto / Monaco-Ville / Moneghetti / Monte-Carlo / Port