MONTE CARLO SOLE / MONOLOCALE CON PARCHEGGIO E CANTINA
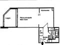
Ampio monolocale con ingresso e ripostiglio, cucina attrezzata, sala principale, bagno e loggia. Una cantina e un posto auto completano questa proprietà.
Posizione del prodotto
Agence
15, boulevard Princesse Charlotte