Nuova costruzione e finiture di lusso | 3 locali

9 500 000 €
Miells-Christie's

Miells-Christie's

14 Avenue de la Costa

Nel quartiere di Saint Roman, vicino a tutti i servizi e a poca distanza dalle spiagge del Larvotto, proponiamo un appartamento trilocale situato a un piano alto all’interno di un nuovo complesso residenziale, Villa Ariane.

Rif. : MP-2967
Prezzo : 9 500 000 €
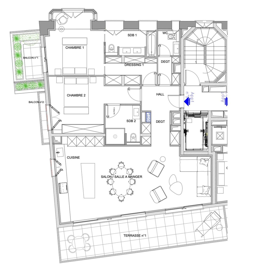
Camere : 2
Bagni : 2
Tipo di proprietà : Appartamento
Edicifio : Villa Ariane
Quartiere : La Rousse - Saint Roman (Monaco)
Superficie abitabile : 130 m²
Superficie totale : 160 m²
Superficie terrazzi : 30 m²
Livello : 9
Data di liberazione : Disponible

Maggiori dettagli

Villa Ariane non è soltanto un indirizzo, ma rappresenta un vero e proprio stile di vita che unisce lusso, comfort e modernità. Questa proprietà d’eccezione, situata al 16 Boulevard d’Italie, nasce da una trasformazione architettonica audace, capace di combinare con maestria il fascino del patrimonio storico con le più recenti innovazioni contemporanee.

Gli appartamenti della Villa Ariane sono stati progettati per offrire un ambiente di vita straordinario. Ogni residente potrà godere di ampie metrature, di prestazioni acustiche e termiche di alto livello e di una vista mozzafiato sulla Principauté di Monaco. Attenta all’ambiente, la residenza adotta un approccio eco-responsabile, utilizzando materiali sostenibili e integrando un design bioclimatico, garantendo così un comfort ottimale in tutte le stagioni.

All’interno di questo nuovo progetto immobiliare, proponiamo un appartamento trilocale così composto: ingresso, ampio soggiorno, cucina a vista, due camere da letto con bagno en suite e un WC per gli ospiti.

Consegna prevista: primo trimestre 2026
Spese notarili ridotte: 2,5%
Miells-Christie's

Miells-Christie's

14 Avenue de la Costa

Contatto

HIQRVZ
Copiare il codice antispam nel campo a destra
* campo obbligatorio

Posizione del prodotto

Quartieri di Monaco

Mareterra Carré d'Or Condamine Fontvieille Jardin Exotique La Rousse - Saint Roman Larvotto Monaco-Ville Moneghetti Monte-Carlo Port