Appartamenti in vendita a MonteCarlo

Mareterra- Grande appartamento di lusso

Tornare alla lista

Palazzo di lusso nuovo

Prezzo su richiesta
No. camere : 4 stanze
Tipo di proprietà : Appartamento
Città : Monaco
Paese : Monaco
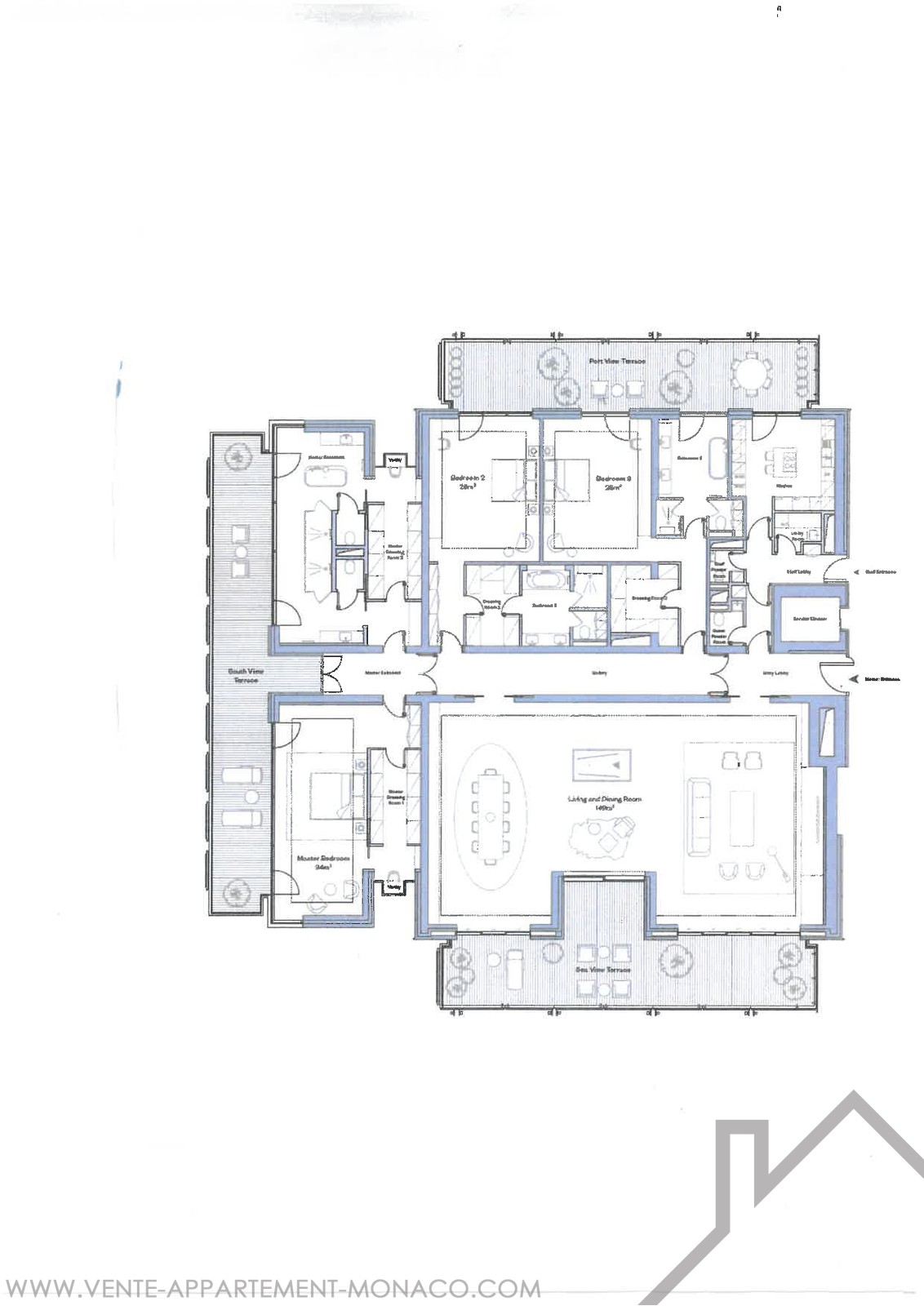
Superficie abitabile : 528 m²
Superficie totale : 679 m²
Superficie terrazzi : 151 m²
Parcheggi : 3

Situato nel nuovo quartiere Anse du Portier, il Renzo offre ai suoi residenti i servizi più moderni ed eleganti,  garantendo grande comfort grazie al servizio di portineria e sicurezza 24/7, alla  piscina ad acqua di mare, la sala riunioni, il lounge, hammam e la sauna, la fitness room , valet service .

L'appartamento d'angolo traversante,  bagnato di luce di fronte al mare, gode della miglior posizione, si apre su ampie terrazze offrendo una vista a 360°.

Un grande soggiorno tripartito offre la possibilità di modulare diverse aree (salone, sala da pranzo, studio)

La cucina indipendente è dotata di elettrodomestici ai più alti standard.

suite principale con un grande bagno con grande doccia e 2 bagni separati. cassa forte. Grande terrazza.

2 camere per gli ospiti con il loro dressing, bagno e doccia, che si apre su una terrazza.

Domotica, tende oscuranti, aria condizionata, ingresso principale e di servizio, porte blindate.


Posizione del prodotto

Agence

Carat Properties
Tour Odéon 36 av. de l'Annonciade

carat-properties.com

+377 99 99 18 18

Contatto

* campo obbligatorio

Tornare alla lista

FR EN IT

Quartieri di Monaco

Anse du Portier / Carré d'Or / Condamine / Fontvieille / Jardin Exotique / La Rousse - Saint Roman / Larvotto / Monaco-Ville / Moneghetti / Monte-Carlo / Port