Appartamenti in vendita a MonteCarlo

Locale commerciale vista porto di Fontvieille

Tornare alla lista

2 756 000 €
No. camere : -
Tipo di proprietà : Locale
Città : Monaco
Paese : Monaco
Superficie abitabile : 85.5 m²
Superficie totale : 85.5 m²
Livello : rdc
Data di liberazione : 30/09/2026

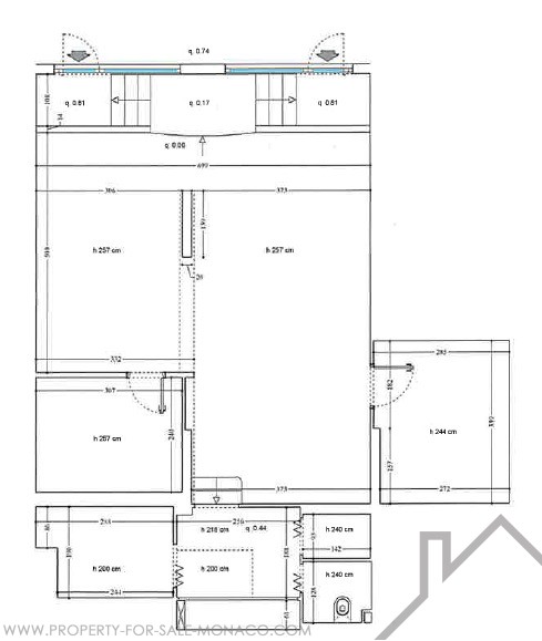
Bella superficie per questo locale commerciale situato sul porto di Fontvieille, che può essere utilizzato anche come ufficio amministrativo

Con una superficie confortevole di  85,5 m², al piano terra dispone di 2 grandi vetrine e 2 porte di accesso.

È composto da una spaziosa stanza principale, 2 stanze laterali, 1 lavanderia, 1 deposito, 1 bagno e armadi.

Venduto affittato 4814,77€ TTC/mese, fino al 30/09/2026


Posizione del prodotto

Agence

Carat Properties
Tour Odéon 36 av. de l'Annonciade

carat-properties.com

+377 99 99 18 18

Contatto

* campo obbligatorio

Tornare alla lista

FR EN IT

Quartieri di Monaco

Anse du Portier / Carré d'Or / Condamine / Fontvieille / Jardin Exotique / La Rousse - Saint Roman / Larvotto / Monaco-Ville / Moneghetti / Monte-Carlo / Port