Appartamenti in vendita a MonteCarlo

RAPHAEL

Tornare alla lista

Locale ristrutturato con grandi finestre e ambiente tranquillo

3 500 000 €
No. camere : -
Tipo di proprietà : Ufficio
Città : Monaco
Paese : Monaco
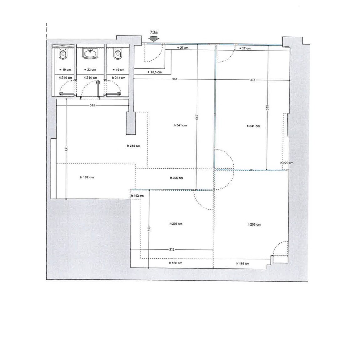
Superficie totale : 94 m²
Livello : RDC
Data di liberazione : 30/09/2026

Locale completamente ristrutturato con pavimentazione in parquet, che offrono:

  • Una grande finestra che dà sui giardini

  • Due accessi indipendenti

  • Partizionamento interno esistente
    Situato in un ambiente molto tranquillo.


Posizione del prodotto

Agence

Monte-Carlo Estates
Le Prince des Galles 3/5 Av. des Citronniers

+37792006969

Contatto

* campo obbligatorio

Tornare alla lista

FR EN IT

Quartieri di Monaco

Anse du Portier / Carré d'Or / Condamine / Fontvieille / Jardin Exotique / La Rousse - Saint Roman / Larvotto / Monaco-Ville / Moneghetti / Monte-Carlo / Port