PALAIS DE LA SCALA

3 800 000 €
Monte-Carlo Estates

Monte-Carlo Estates

Le Prince des Galles 3/5 Av. des Citronniers

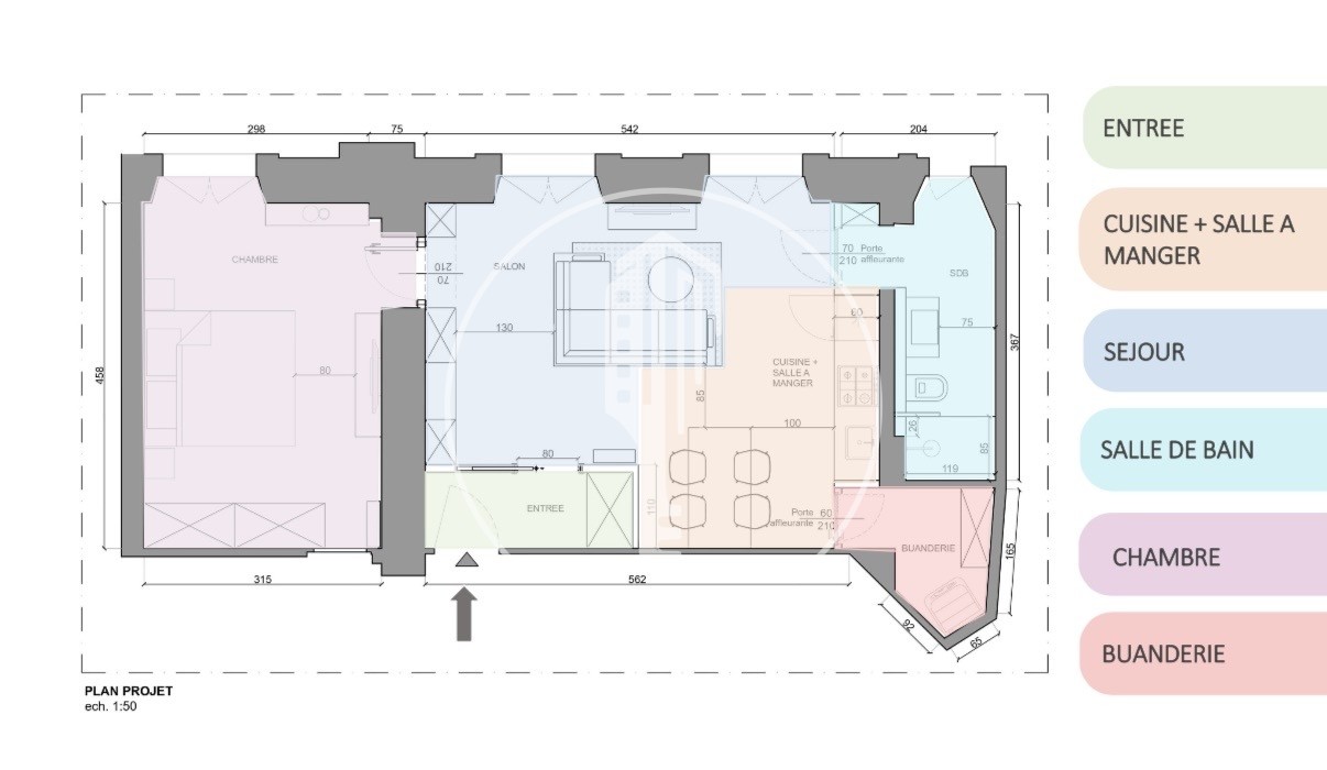
Magnifico appartamento misto a due stanze, attualmente in ristrutturazione

Rif. : V200
Prezzo : 3 800 000 €
Camere : 1
Bagni : 1
Tipo di proprietà : Appartamento
Edicifio : Palais de la Scala
Quartiere : Carré d'Or (Monaco)
Superficie abitabile : 60.7 m²
Superficie totale : 60.7 m²
Livello : 3
Data di liberazione : Libre

Maggiori dettagli

Idealmente situato in una delle zone più prestigiose di Monaco, questo appartamento a due stanze completamente ristrutturato incarna raffinatezza e comfort contemporaneo.

Situata nel molto ambito Palazzo della Scala, questa proprietà offre un'atmosfera luminosa e rilassante, valorizzata da materiali di qualità e finiture meticolose. Dall'ingresso, i volumi ottimizzati rivelano uno spazio abitativo armonioso, dove ogni dettaglio è stato pensato per combinare estetica e funzionalità.

Il soggiorno, immerso nella luce naturale, si apre su un'elegante e perfettamente integrata cucina, ideale per ricevere ospiti in un ambiente chic e accogliente. La stanza, un vero bozzolo, invita a rilassarsi con un'atmosfera calda e sofisticata. Un bagno moderno completa questo set con stile.

Questo appartamento beneficia anche di un uso misto, offrendo rara flessibilità, perfetto per una residenza principale, un pied-à-terre o un'attività professionale.

A pochi passi da boutique di lusso, ristoranti rinomati e il Casinò, questo indirizzo eccezionale promette un ambiente abitativo unico, unendo dinamismo e prestigio.

Attualmente in fase di ristrutturazione.

Monte-Carlo Estates

Monte-Carlo Estates

Le Prince des Galles 3/5 Av. des Citronniers

Contatto

IMOWXZ
Copiare il codice antispam nel campo a destra
* campo obbligatorio

Posizione del prodotto

Carré d'Or

Posto mitico del Principato di Monaco, il Carré d'Or non è proprio un quartiere ma la zona che circonda il Casino di Monte-Carlo.

Si trovano le boutique dei grandi nomi dell'alta moda come Hermès, Céline, Christian Dior, Saint Laurent Rive Gauche, Louis Vuitton, Gucci, Chanel, Prada, Ichthys, o le vetrine di gioiellieri come Cartier, Chopard, Van Cleef Arpels, Bulgari, Piaget, Repossi... Ci sono anche dei palazzi molto ricercati dai compratori come il Park Palace, il Métropole, il Mirabeau, il Monte-Carlo Star o ancora il Montaigne.

Quartieri di Monaco

Mareterra Carré d'Or Condamine Fontvieille Jardin Exotique La Rousse - Saint Roman Larvotto Monaco-Ville Moneghetti Monte-Carlo Port