Appartamenti in vendita a MonteCarlo

ROCAZUR / UFFICI E PARCHEGGI

Tornare alla lista

5 405 000 €
No. camere : 5 stanze
Tipo di proprietà : Altro prodotto
Città : Monaco
Paese : Monaco
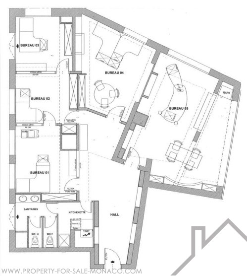
Superficie abitabile : 147 m²
Arredato : 1
Parcheggi : 2

Questi locali sono composti da 5 spazi di lavoro, un angolo cottura e servizi igienici. Hanno 2 posti auto.

 

Affittato fino al 14 ottobre 2027


Posizione del prodotto

Agence

Coldwell Banker Etic Realty
15, boulevard Princesse Charlotte

www.eticimmobilier.com

+377 93 50 57 94

Contatto

* campo obbligatorio

Tornare alla lista

FR EN IT

Quartieri di Monaco

Anse du Portier / Carré d'Or / Condamine / Fontvieille / Jardin Exotique / La Rousse - Saint Roman / Larvotto / Monaco-Ville / Moneghetti / Monte-Carlo / Port