Appartamenti in vendita a MonteCarlo

LES ACANTHES - CARRÉ D'OR - 4 STANZE RINNOVATE

Tornare alla lista

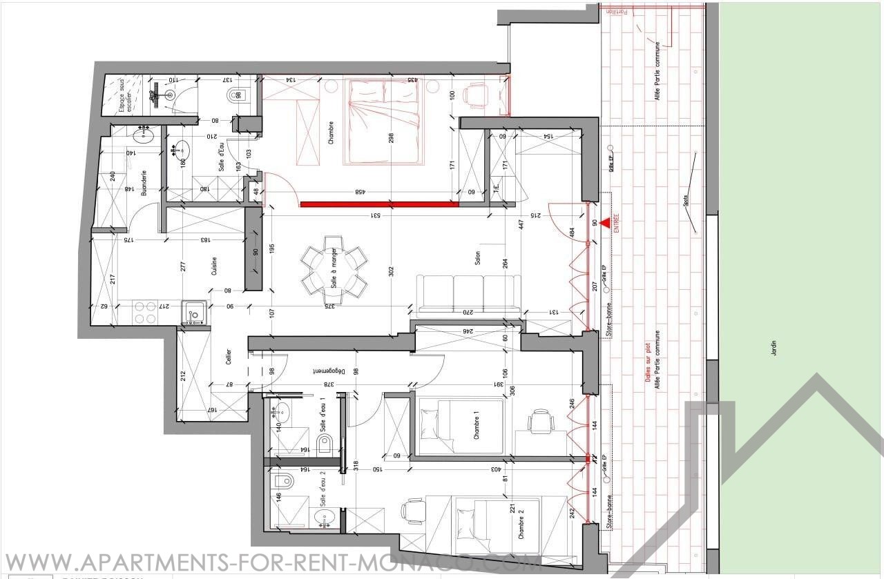
Appartamento attualmente in ristrutturazione, situato nel cuore del Carré d'Or in un edificio di lusso. Dispone di una cantina e di un parcheggio, a pochi passi dal Casino de Monte-Carlo e dalle spiagge di Larvotto.

7 000 000 €
No. camere : 4 stanze
Tipo di proprietà : Appartamento
Città : Monaco
Paese : Monaco
Superficie abitabile : 108 m²
Superficie totale : 189.9 m²
Superficie terrazzi : 81.9 m²
Livello : 1
Data di liberazione : À convenir
Parcheggi : 2

Situato nel cuore del prestigioso quartiere Carré d'Or a Monaco, questo raro appartamento in affitto offre un ambiente abitativo eccezionale.

Beneficiando di una piacevole terrazza, si distingue per un ampio e luminoso soggiorno doppio, ideale per ospitare o godersi un ampio spazio abitativo.

L'appartamento dispone di tre ampie camere da letto, ciascuna con il proprio bagno privato, oltre a numerosi spazi di deposito integrati.

Questa proprietà offre anche servizi particolarmente richiesti in questa zona molto popolare, tra cui due parcheggi e una cantina, in una residenza elegante, sicura e perfettamente tenuta.


Posizione del prodotto

Agence

Petrini Exclusive Real Estate Monaco
3 Avenue des Citronniers

www.petrini.mc

+377 92 00 16 00

Contatto

* campo obbligatorio

Tornare alla lista

FR EN IT

Quartieri di Monaco

Anse du Portier / Carré d'Or / Condamine / Fontvieille / Jardin Exotique / La Rousse - Saint Roman / Larvotto / Monaco-Ville / Moneghetti / Monte-Carlo / Port