Lussuoso appartamento di 2 locali con vista mare
Elegante bilocale con vista mare – Boulevard d’Italia, Residenza “La Radieuse”
Situato in posizione privilegiata sul prestigioso Boulevard d’Italia, all’interno della curata residenza “La Radieuse”, questo elegante bilocale completamente arredato offre un ambiente abitativo raffinato. La proprietà si trova a pochi passi da negozi attrattivi, da un supermercato di alta qualità e da tutti i servizi necessari alla vita quotidiana. Grazie all’ascensore della residenza, le spiagge di Monaco con i loro splendidi caffè e ristoranti sono facilmente e rapidamente raggiungibili.
L’appartamento colpisce per il suo concept abitativo elegante e armonioso. Le calde tonalità beige, abbinate al parquet chiaro in legno, conferiscono agli ambienti un’atmosfera elegante e al tempo stesso accogliente. La disposizione degli spazi è stata attentamente studiata per valorizzare sia la sensazione di ampiezza sia le possibilità di contenimento. Grazie all’esposizione a est, si può inoltre godere della splendida luce del sole del mattino.
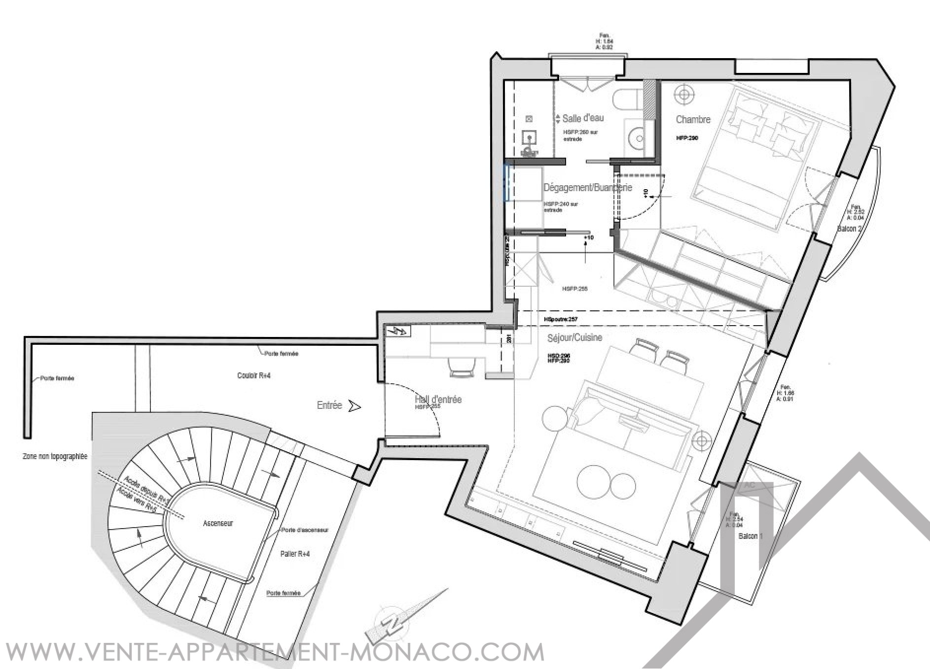
La superficie abitabile comprende un accogliente ingresso, un luminoso soggiorno con un piccolo angolo ufficio e una cucina aperta completamente attrezzata. L’appartamento dispone inoltre di una confortevole camera da letto con vista mare e di un moderno bagno con doccia adiacente. Una bella terrazza con una magnifica vista sul mare completa questa interessante proprietà.
Questa proprietà rappresenta un’eccellente opportunità, sia come elegante residenza principale, come esclusiva seconda casa sulla Costa Azzurra, sia come interessante investimento con ottime prospettive di locazione.
L’appartamento dispone di un accogliente ingresso, di una luminosa zona giorno con un piccolo ufficio, di una cucina a vista completamente attrezzata, di una camera da letto con bagno con doccia en suite, oltre a una splendida terrazza.
Posizione del prodotto
Agence
47, boulevard du Jardin Exotique