L'Ambassador - Boulevard des Moulins

2 900 000 €
FCF Cristea-Flandrin Immobilier

FCF Cristea-Flandrin Immobilier

21, boulevard des Moulins

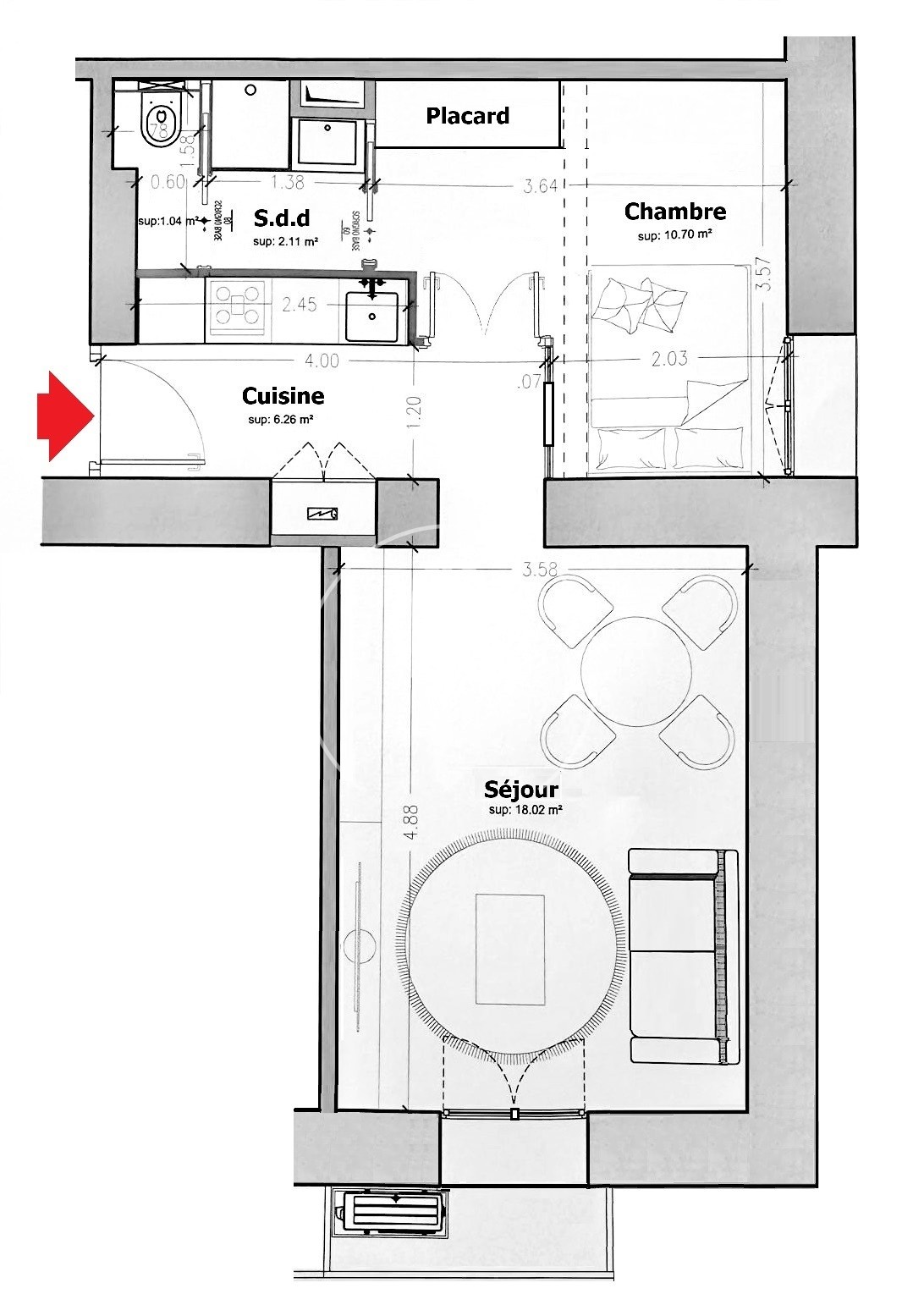
Idéal pied-à-terre, appartement de 2 PIECES principales entièrement rénové, idéalement situé à proximité de nombreux commerces, restaurants et autres commodités parmi lesquelles les ascenseurs publics facilitant l’accès direct au Quartier des Plages.

Rif. : FFV1053
Prezzo : 2 900 000 €
Tipo di proprietà : Appartamento
Edicifio : Ambassador
Quartiere : Monte-Carlo (Monaco)
Superficie abitabile : 51 m²
Superficie totale : 53 m²
Superficie terrazzi : 2 m²

Maggiori dettagli

Ingresso, kitchenette equipaggiata, soggiorno, camera da letto con armadio a muro, bagni con doccia, aria condizionata

FCF Cristea-Flandrin Immobilier

FCF Cristea-Flandrin Immobilier

21, boulevard des Moulins

Contatto

IJMPST
Copiare il codice antispam nel campo a destra
* campo obbligatorio

Posizione del prodotto

Quartieri di Monaco

Mareterra Carré d'Or Condamine Fontvieille Jardin Exotique La Rousse - Saint Roman Larvotto Monaco-Ville Moneghetti Monte-Carlo Port