Ampio appartamento familiare su due piani | Edificio moderno | Condamine

14 400 000 €
Miells-Christie's

Miells-Christie's

14 Avenue de la Costa

Nel cuore dell'ambita zona di La Condamine, a due passi dal porto, scoprite questo splendido duplex familiare che offre ampi spazi, una luminosità straordinaria e vista sul mare, all'interno del residence di lusso Le Stella, dotato di servizio di portineria e palestra.

Rif. : MP-3018
Prezzo : 14 400 000 €
Camere : 3
Bagni : 3
Tipo di proprietà : Appartamento
Edicifio : Le Stella
Quartiere : Condamine (Monaco)
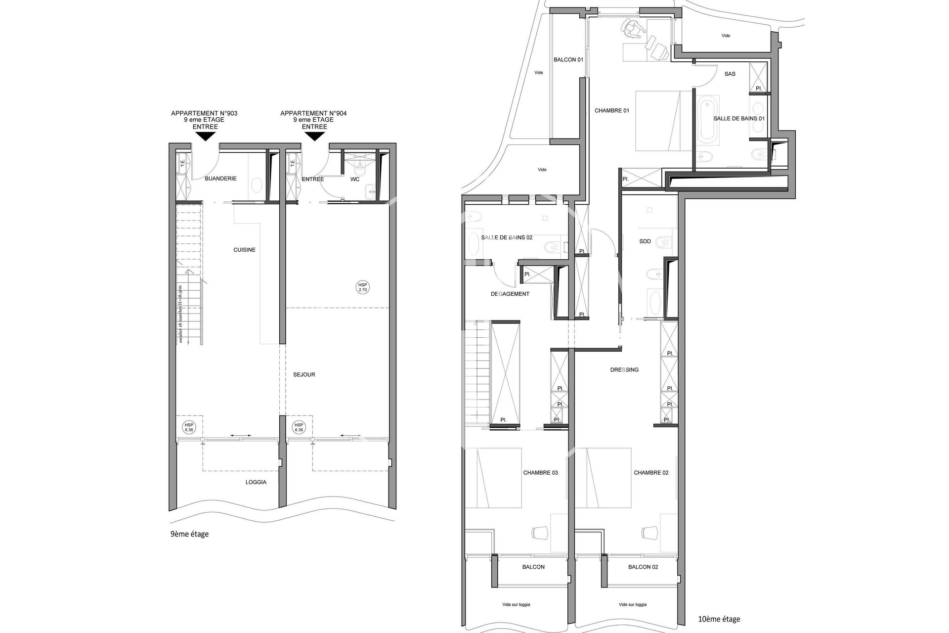
Superficie abitabile : 187 m²
Superficie totale : 213 m²
Superficie terrazzi : 26 m²
Livello : High
Data di liberazione : Disponible
Parcheggi : 2

Maggiori dettagli

Situato nel quartiere storico e commerciale della Condamine, a pochi passi dal porto, questo splendido appartamento familiare su due piani offre ambienti spaziosi e zone giorno progettate con cura.
Ampio e luminoso, si compone al primo piano di un ingresso con bagno per gli ospiti, un soggiorno con loggia che offre una vista sul mare, una grande cucina attrezzata con zona pranzo e loggia, nonché una lavanderia.

Una scala conduce al piano superiore, la zona notte, composta da un disimpegno che serve la suite padronale con balcone e vista mare, una cabina armadio, uno spazio ufficio e un bagno con doccia adiacente, una seconda suite con balcone, bagno adiacente e armadi a muro, nonché una terza camera con armadi e un bagno con doccia separato.
Possibilità di acquisto arredato.

Cantina e 2 posti auto inclusi.
Lo Stella è un edificio di ottimo livello con servizio di portineria e palestra. La sua architettura essenziale offre ai residenti un ambiente di vita contemporaneo e intimo.
Miells-Christie's

Miells-Christie's

14 Avenue de la Costa

Contatto

BENORY
Copiare il codice antispam nel campo a destra
* campo obbligatorio

Posizione del prodotto

Condamine

Il quartiere della Condamine a Monaco è un luogo dinamico e vivace, situato tra il Porto Hercule e Monaco Ville.

Questo settore storico è noto per le sue affascinanti strade commerciali, il suo mercato tradizionale e la sua vicinanza alle principali attrazioni monegasche.

Ideale per residenti e investitori, la Condamine offre un contesto di vita eccezionale che mescola modernità e autenticità.

Quartieri di Monaco

Mareterra Carré d'Or Condamine Fontvieille Jardin Exotique La Rousse - Saint Roman Larvotto Monaco-Ville Moneghetti Monte-Carlo Port