Locali commerciali - Sede amministrativa

2 756 000 €
Agence Continentale

Agence Continentale

19, boulevard des Moulins

Il Michelangelo si trova nel cuore di Fontvieille, nelle immediate vicinanze dei negozi, dei percorsi pedonali e del porto. La sua posizione offre un ambiente dinamico e pratico, apprezzato per la qualità del suo ambiente e la visibilità che consente alle attività professionali.

Rif. : Bur_MICH077
Prezzo : 2 756 000 €
Tipo di proprietà : Locale
Edicifio : Le Michelangelo
Quartiere : Fontvieille (Monaco)
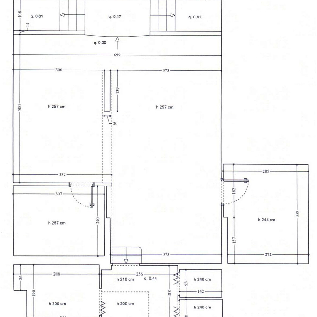
Superficie abitabile : 85 m²
Superficie totale : 85 m²
Livello : Rez-de-Chaussée
Data di liberazione : 30/09/2026

Maggiori dettagli

Descrizione di questa camera

Questo luminoso locale ha una grande finestra. Si compone di un locale principale ampliato da due spazi secondari, una lavanderia, un ripostiglio e servizi igienici. Il complesso offre un'organizzazione funzionale adatta ad un uso amministrativo o commerciale, rafforzata dalla presenza di volumi luminosi e facilmente convertibili.

Attualmente affittato con contratto di locazione 3-6-9 con scadenza 30 settembre 2026, ospita un'attività di parrucchiere. Questo luogo è un indirizzo efficace per sviluppare un'attività in un quartiere vivace e ben strutturato.

Agence Continentale

Agence Continentale

19, boulevard des Moulins

Contatto

EHMSUY
Copiare il codice antispam nel campo a destra
* campo obbligatorio

Posizione del prodotto

Quartieri di Monaco

Mareterra Carré d'Or Condamine Fontvieille Jardin Exotique La Rousse - Saint Roman Larvotto Monaco-Ville Moneghetti Monte-Carlo Port