Uffici luminosi con doppio accesso e vetrina

2 756 000 €
MyCrown Estates

MyCrown Estates

1 Bd Princesse Charlotte

L'ufficio è attualmente affittato a 3687 euro/mese + IVA + tasse fino al 30 settembre 2026, offrendo un flusso di reddito immediato per gli investitori o un'opportunità di trasloco differito per i futuri utenti.

Rif. : MCE37
Prezzo : 2 756 000 €
Tipo di proprietà : Ufficio
Edicifio : Le Michelangelo
Quartiere : Fontvieille (Monaco)
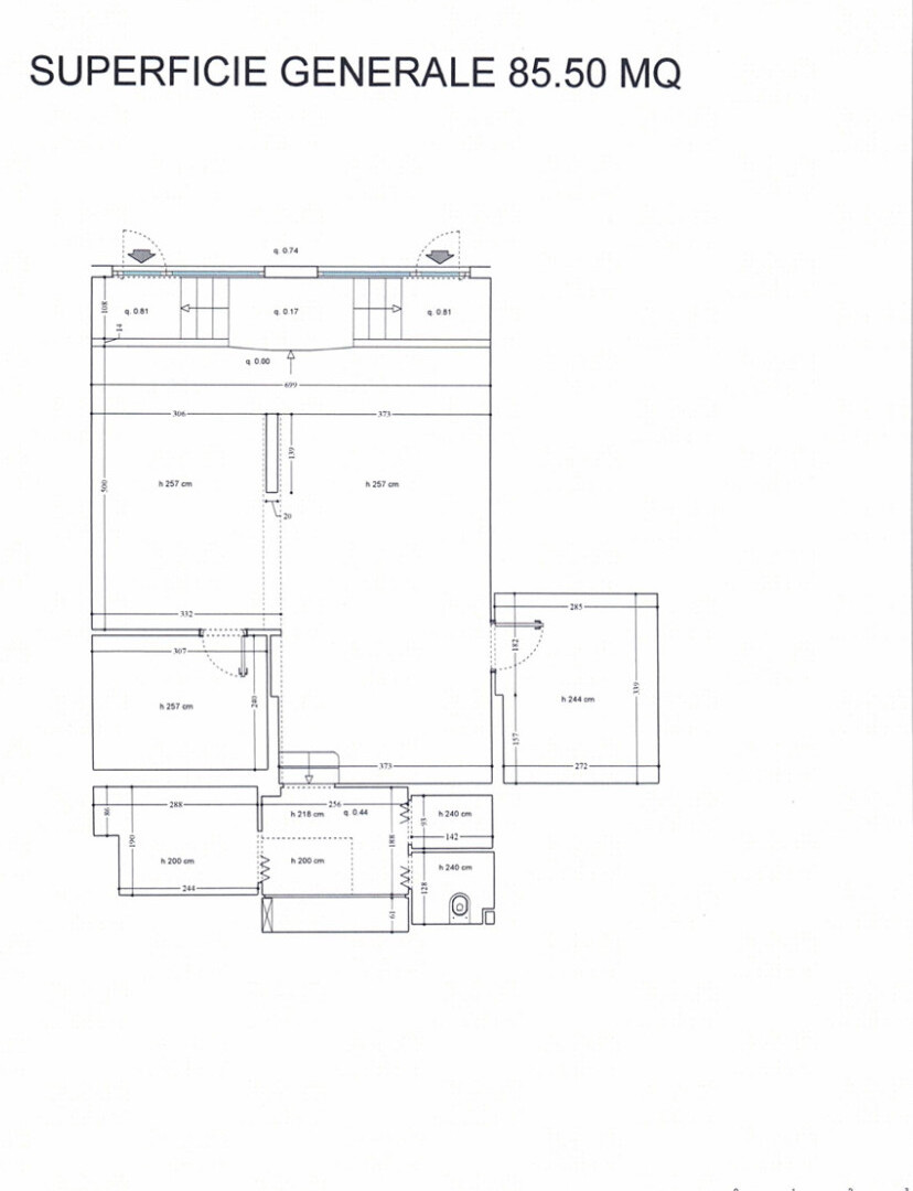
Superficie abitabile : 85.5 m²
Superficie totale : 85.5 m²
Data di liberazione : 30/09/2026

Maggiori dettagli

Scopri questo spazio ufficio splendidamente progettato, perfetto per le esigenze della tua attività. Con una generosa superficie di 87 metri quadrati, la disposizione prevede tre stanze spaziose, un WC, una lavanderia e uno spazio di deposito dedicato.

L'ufficio vanta due ingressi separati, offrendo un'eccellente accessibilità sia per i clienti che per il personale. Una vetrina invita alla luce naturale, migliorando lo spazio di lavoro e offrendo un'eccellente visibilità.

Goditi una vista tranquilla sul giardino che porta un senso di tranquillità al tuo ambiente di lavoro quotidiano. Situato in una zona tranquilla e ambita, questo ufficio è ideale per le aziende che cercano uno spazio produttivo e ispiratore.

Attualmente l'immobile è affittato a 3.595,64 euro + 20% IVA + 500 euro di costi mensili = 4.814,77 euro in totale.

MyCrown Estates

MyCrown Estates

1 Bd Princesse Charlotte

Contatto

DILRTY
Copiare il codice antispam nel campo a destra
* campo obbligatorio

Posizione del prodotto

Quartieri di Monaco

Mareterra Carré d'Or Condamine Fontvieille Jardin Exotique La Rousse - Saint Roman Larvotto Monaco-Ville Moneghetti Monte-Carlo Port